Create more
useable space and add value to your home by adding a multi-purpose, genuine
wooden cabin! Whether you’re looking for an office haven, craft room or a bolt-hole
for that rowdy grandperson in your life, this Scandi-style cabin will take care
of it in style.
The good-looking Nordic spruce timber is 28mm thick providing durability and weather-tightness, and having been kiln-dried it’s resistant to warping. Sourced sustainably and PEFC certified too. Easy to erect, your new cabin comes flat-packed with full instructions although it’s never a bad idea to engage a professional.
Choose from
our chic 4 pre-painted colours which each come with creamy white trim and
natural interior, or select Natural Untreated timber if you want to use your
own personal paint palette for the all-important eye-candy.
PRICES
Size 1: 230x175cm Untreated $3999 Painted $4999Size 2: 230x230cm Untreated $4499 Painted $5999
1) Delivery is via hiab truck – the ones with a hydraulic crane on them. If your driveway isn’t suitable for such a vehicle then this product may not be right for you without a carefully pre-planned work-around.
2) This is sold as a Pick-Up to allow us to quote each customer’s delivery charges individually. You MUST be ready to receive your cabin when it lands in NZ as your storage costs at our 3rd party warehousing facility may be significant.
COLOURS AVAILABLE
Natural Untreated Nordic Spruce
Light Grey
Carbon Grey
Glacier Green
Swedish Red
KEY FEATURES
- 28mm thick wooden planks
- Kiln-dried Nordic spruce, sustainably grown
- All painted cabins have creamy white trim and a plain wood interior
- Windows are 4mm single glazed
- Roofing is INCLUDED! Either a high-quality black polymer bitumen roofing felt suitable for long-term waterproof roof covering, or black waterproof roof shingles. Please see specs for details.
- Wooden Flooring is also INCLUDED
- Includes comprehensive assembly instructions
- Delivery charges are additional.
- A hiab truck required for delivery* which needs to be quoted individually or you can arrange pick-up yourself from an Auckland depot.
- Delivery may not be available in all areas so if you live outside the main centres, or have a fiendish driveway scenario with limited heavy-truck access, please check with us in advance.
No Resource Consent Required!
You shouldn’t need resource consent for this cabin as it’s under 30m2, but we always recommend doing your own research!
Here’s a link to get you started (and it will pay to check with your local authority too): https://bit.ly/4aUTeU3
You shouldn’t need resource consent for this cabin as it’s under 30m2, but we always recommend doing your own research!
Here’s a link to get you started (and it will pay to check with your local authority too): https://bit.ly/4aUTeU3
SPECIFICATIONS:
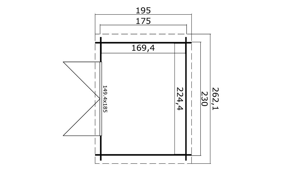
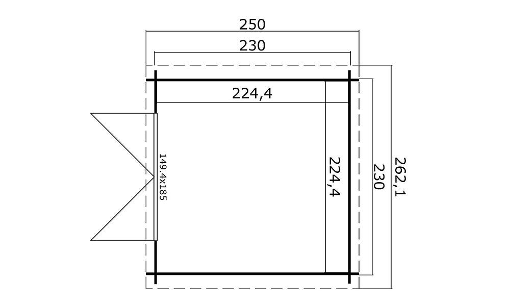
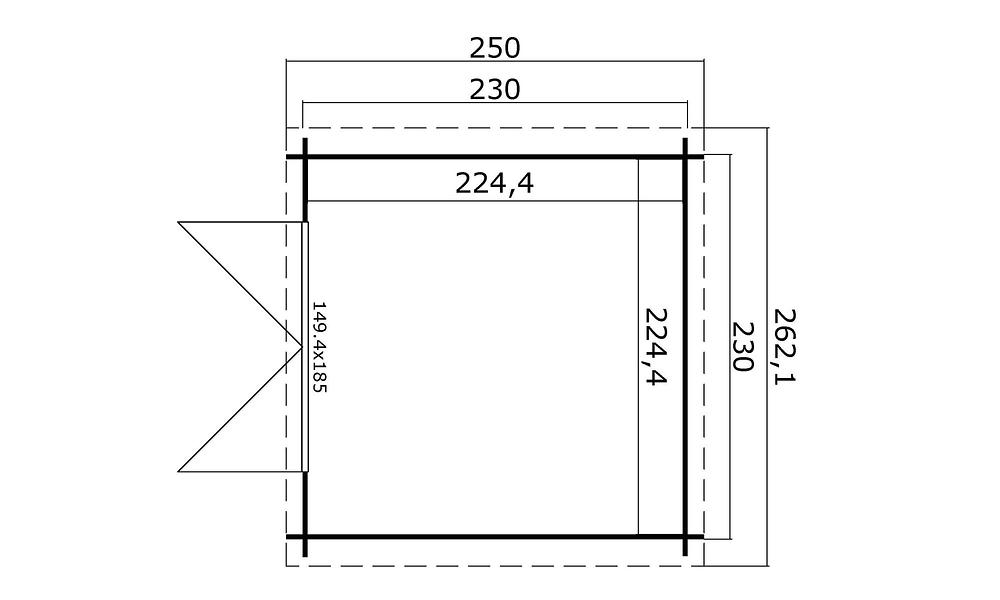
Base dimensions WxD: 230 x 175cm
- Wall Thickness: 28mm
- Floor Area: 3.8m2
- Volume: 7.91m3
- Side Wall Height: 194cm
- Ridge Height: 222cm
- Roof Overhang: 10cm
- Roof Area: 5.26m2
- Double Door: WxH 149x185cm
- Floor - optional 2 x 3m2 sections
- Roof: Black roofing shingles provided
See detailed specs here
See instruction manual here (size 1)
Base dimensions WxD: 230 x 230cm
See instruction manual here (size 1)
Base dimensions WxD: 230 x 230cm
- Wall Thickness: 28mm
- Floor Area: 5.04m2
- Volume: 10.48m3
- Side Wall Height: 194cm
- Ridge Height: 222cm
- Roof Overhang: 10cm
- Roof Area: 6.75m2
- Double Door: WxH 149x185cm
- Floor - optional 2 x 3m2 sections
- Roof: Black roofing shingles provided
HINTS:
- The construction pad must be absolutely level. It should be slightly smaller than the substructure.
- You must allow
for air to circulate around the base, so there must be some elevation.
- You may
want to treat the underside of the floor-boards and all foundation wood.
- You may
want to buy some extra strapping for security.
- You may
wish to put insulation under the floorboards.
ABOUT OUR SUPPLIER:
Our supplier, located in Europe, has been a manufacturer of high quality wooden cabins and other buildings for more than 20 years. They combine superior wood selection with modern technology and traditional craftsmanship, and have their own plant of precision machine tools to saw, plane and mill the individual parts to their exact specifications.
They use only carefully-selected sustainably sourced Nordic Spruce. Its slow growth in Europe’s colder regions gives the wood a denser fibre than woods such as pine, making it more resistant to decay as well as strong and highly durable.
Their highly trained staff inspect not only the initial materials and components but also the finished pieces for quality assurance. In fact, they have implemented a quality management system that complies with the requirements of the ISO9001 standard, so you can rest assured they experts who care about quality, not just some shonky cabin cowboys.
Our supplier, located in Europe, has been a manufacturer of high quality wooden cabins and other buildings for more than 20 years. They combine superior wood selection with modern technology and traditional craftsmanship, and have their own plant of precision machine tools to saw, plane and mill the individual parts to their exact specifications.
They use only carefully-selected sustainably sourced Nordic Spruce. Its slow growth in Europe’s colder regions gives the wood a denser fibre than woods such as pine, making it more resistant to decay as well as strong and highly durable.
Their highly trained staff inspect not only the initial materials and components but also the finished pieces for quality assurance. In fact, they have implemented a quality management system that complies with the requirements of the ISO9001 standard, so you can rest assured they experts who care about quality, not just some shonky cabin cowboys.
What is PEFC certification, you ask?
When you see the PEFC label on a product, it means that the wood comes from a PEFC-certified forest. A PEFC-certified forest is a forest that is managed in line with the strictest environmental, social and economic requirements.























